3 bedroom apartment on Monumental road, Lido area, Madeira

925 000€

  • 3
  • 3
  • 4
  • Usable: 173m2
  • Floor: 209m2
  • C.E.: A+
  • Year: 2025
  • Ref: 63874-MCGO62455

Location

Madeira, Funchal, São Martinho, São Martinho

Description

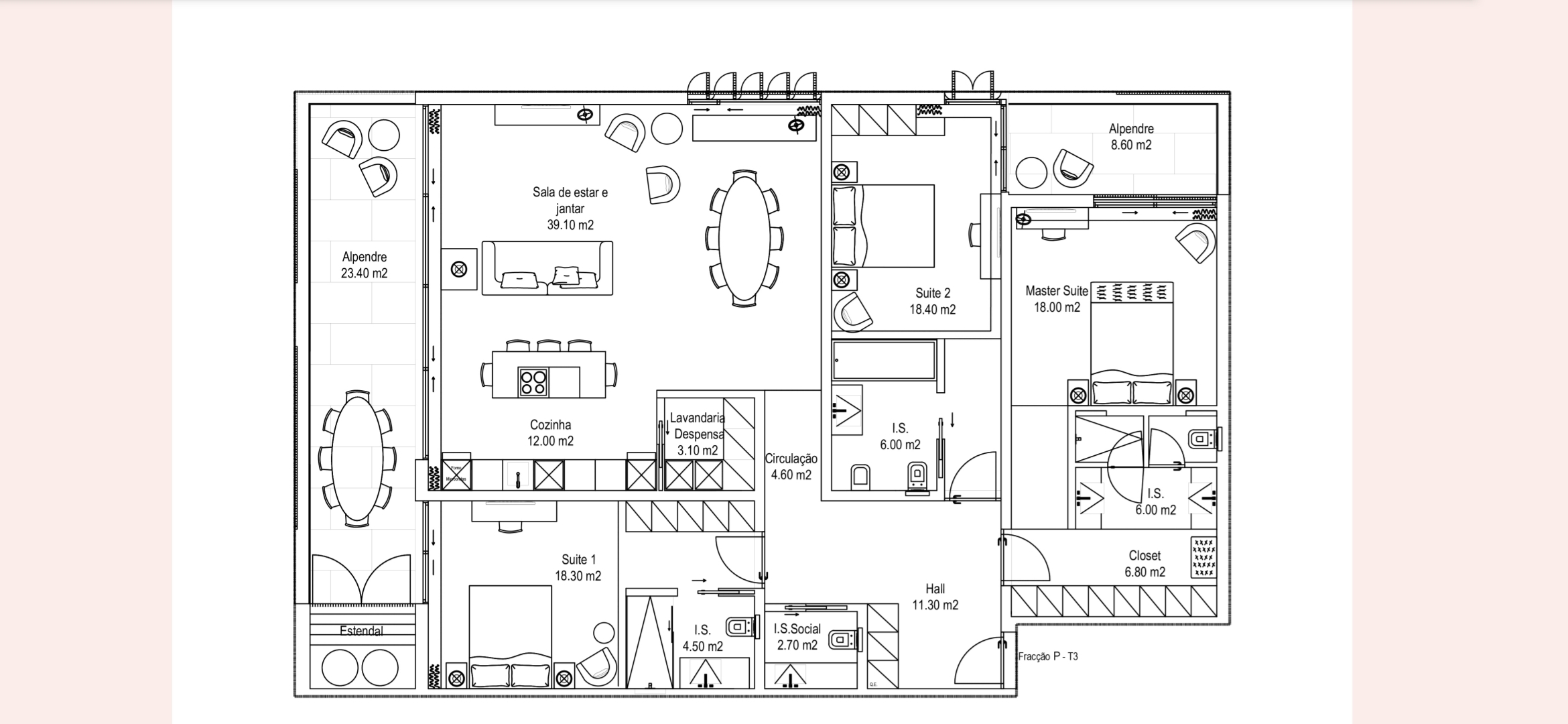
A 3-bedroom apartment with high-quality finishes and an area of 209sqm, located in Funchal, in the Lido area, on the prestigious Estrada Monumental, offers a unique opportunity to live close to the sea in a premium area of the city.
This property is on the 3rd floor, in a modern and exclusive building, with features that guarantee comfort and sophistication.

Composed of an entrance hall, an open space with an area of 51m² with direct access to a terrace and garden with an area of 24m² where there is an outdoor dining area providing a comfortable environment due to the proximity to the fully equipped kitchen.
The private area consists of three suites, with large areas served by balconies.
The fact that this apartment has balconies in the suites allows you to enjoy different views and sun exposure throughout the day.
Located in a privileged area on the Monumental road, this apartment offers easy access to all the local amenities, the best hotels, restaurants and a bathing area, ideal for swimming and relaxing at the end of the day. In addition, the area is well served by public transport, shopping areas and green spaces, offering an excellent quality of life.

The contemporary and elegant architecture of Monumental 181, where the apartment is located, also includes high-quality communal spaces such as a communal swimming pool, sauna and green areas, a garage for two cars and a storage room so that residents can enjoy all the amenities of a luxury condominium.

This property is perfect for those looking for exclusivity, comfort and a privileged location in Funchal.

Get in touch for more information and to arrange your visit.

Attributes

  • Condominium
  • Double glazed windows
  • Dishwasher
  • Terrace
  • City View
  • Air Conditioning
  • Equipped Kitchen
  • Elevator
  • Washing machine
  • Storage area
  • Parking Included
  • Pool
  • Balcony
  • Garage (Box)
  • Sea view
  • Domotics
  • Solar Panels
  • Laundry
  • Sauna
  • Garden
  • Thermal Insulation
  • Acoustic Insulation
  • Vista Desafogada
  • Quiet Place
  • Suite
  • Pantry
  • Good Solar Exposure
  • Electric blinds
  • Built-in wardrobe
  • Garage (Box with automatic gate)

Divisions

Blueprints

Floor name: House Floor 0

Division Area Note
Entrance Hall 11.30m2
Open Space 51.10m2 Acesso direto ao terraço com zona de refeições
Terrace 23.40m2
Suite 22.80m2 wc 4,5m²
Suite 24.40m2 wc 6m² com varanda 8,60m²
Suite 30.80m2 wc 6m², closet 6,80m², varanda 8,60m²
WC 2.70m2
Laundry 3.10m2